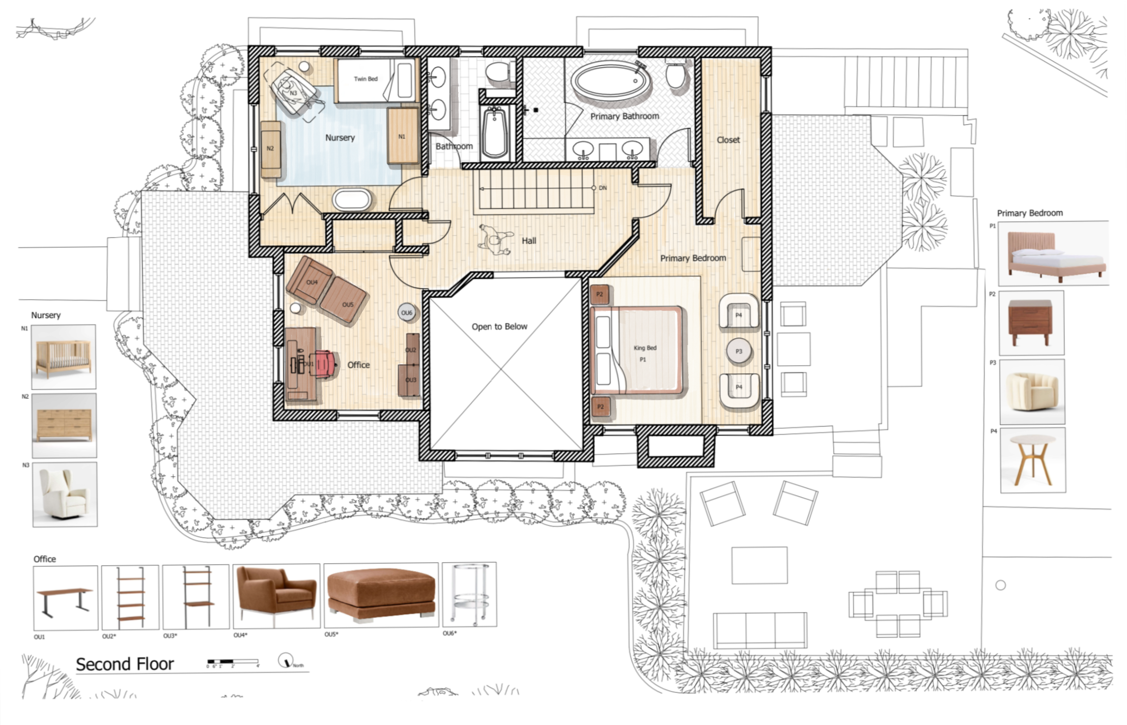
House in Old Greenwich
Personal Project (2023)
Old Greenwich, Connecticut

Formal Living Room
Commission:
to provide interior design for a four bedroom home. Scope includes wall paint, flooring, carpentry, and furnishings.
Collaborator
Danica Bassman
Project Status
Ongoing
The interior strategy was to maintain the beautiful light and open feel of this colonial home. Abundant natural light runs through the spaces. The walls are white throughout and are paired with a white oak flooring. The palette of furniture stays bright with off whites, more white oak, and glass. To juxtapose these elements, some cooler toned fabrics are employed varying from blue and grey to blush.
Additional new carpentry work includes interior french doors, custom bookcases, and a new breakfast banquette.

